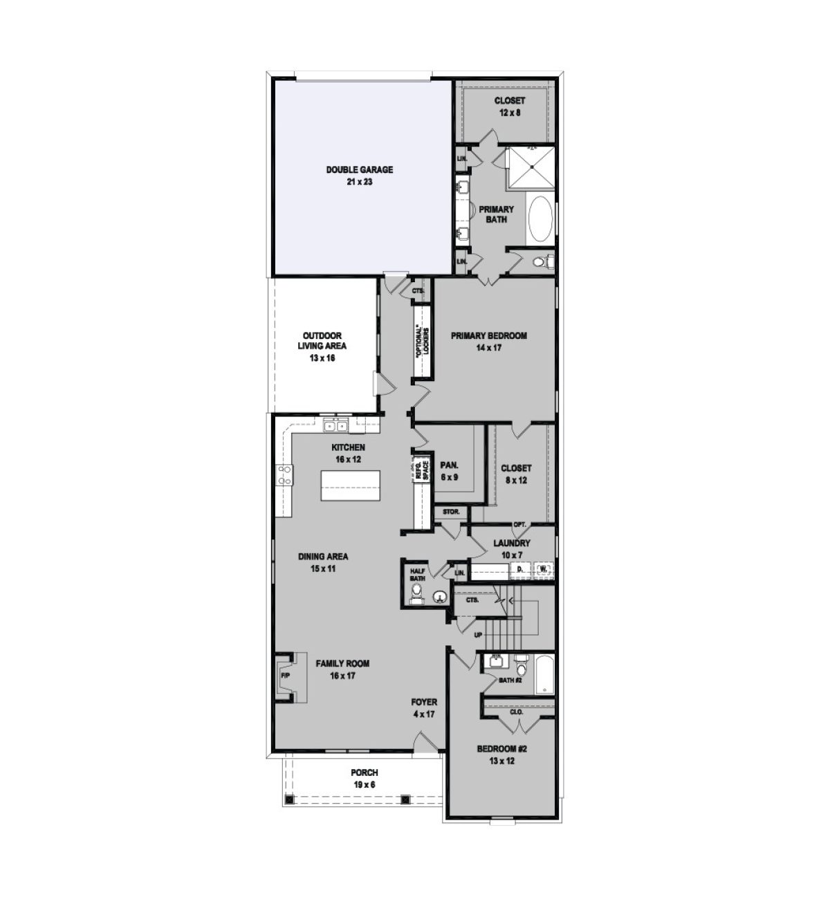
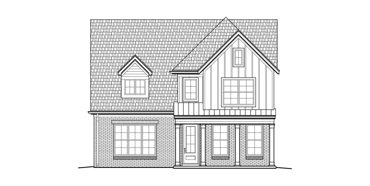
Silas
-
5 Bedrooms
-
4.5 Bathrooms
-
3,177 SqFt
Silas
- 5 Bedrooms
- 4.5 Bathrooms
- 3,177 SqFt
Available in these communities:
Interested in learning more?
We're here to help. Fill out this short form and a Regency representative will get back to you quickly.
This site is protected by reCAPTCHA and the Google Privacy Policy and Terms of Service apply.
Disclaimer: The estimated payment is provided for illustration only. Estimated monthly payment assumes interest rate, principal and interest only. Property taxes, insurance, and HOA fees are not being represented in monthly calculations. The assumed terms may not be available for all buyers and you should contact a lender of your choosing for information, terms and conditions specific to your current situation.